|
|
ТЕМП, устройства газогорелочные
Устройства газогорелочные ТЕМП
Устройства газогорелочные ТЕМП
Назначение
Устройства
газогорелочные УГТ-ТЕМП предназначены для сжигания газа в аппаратах отопительных
бытовых с водяным контуром, отопительных водогрейных котлах и бытовых печах с
автоматическим регулированием и контролем безопасности их работы.
Применяются для
газификации жилых домов, при переводе ранее установленной отопительной
аппаратуры или котлов с твердого топлива на природный или сжиженный газ.
Технические характеристики
-
Номинальное
давление газа в сети, кПа
-
природного
1,3 или 2,0
-
сжиженного
от 1,5 до 3,0
-
Температура
окружающего воздуха, °С от -2 до +70
-
Диапазон
регулирования температуры теплоносителя, °С от 50 до 90
-
Время
воспламенения газа на основной горелке с, не более 2
-
Время
включения в работу, с, не более 60
-
Время
выключения при погасании пламени, с, не более 60
-
Время
выключения при отсутствии разрежения в топке, с не менее 10, не более 60
-
Разрежение в
топке, Па от 2 до 40
-
Масса
устройства, кг, не более 12
-
Средний срок
службы, лет, не менее 10
Модификации газогорелочных
устройств ТЕМП
|
Исполнение |
Номинальная тепловая
мощность, кВт |
Номинальное давление газа,
кПа |
Просоединительная резьба для
подачи газа, дюйм |
Мощность запальной горелки,
кВт |
|
УГТ-18 |
18 + 1,8 |
1,3 |
G – 1/2 B |
0,5 (0,8) |
|
УГТ-25 |
25 + 2,5 |
|
УГТ-30 |
30 + 3,0 |
|
УГТ-41 |
41 + 4,1 |
|
УГТ-20М |
20 + 2,0 |
|
УГТ-30М |
30 + 3,0 |
|
УГТ-38М |
38 + 3,8 |
|
УГТ-46М |
46 + 4,6 |
G – 3/4 B |
1,0 |
|
УГТ-54М |
54 + 5,4 |
|
УГТ-50 |
50 + 5,0 |
G – 1 B |
|
УГТ-56 |
56 + 5,6 |
|
УГТ-62 |
62 + 6,2 |
|
УГТ-68 |
68 + 6,8 |
|
УГТ-75 |
75 + 7,5 |
|
УГТ-80 |
80 + 8,0 |
|
УГТ-100 |
100 + 10 |
2,0 |
1,5 |
|
УГТ-100А |
100 + 10 |
|
УГТ-120 |
120 + 12 |
1,3 |
Примечание:
по желанию потребителя изготавливаем газогорелочные устройства ТЕМП различных
конструктивных исполнений: с литыми исварными горелками; с кожухом и без кожуха.
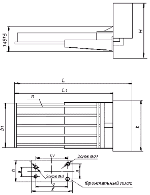
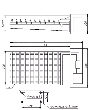
Габаритные и присоединительные
размеры газогорелочных устройств ТЕМП

|
Тип устройства |
L mm |
L1 mm |
a mm |
a1 mm |
b mm |
b1 mm |
c mm |
c1 mm |
l mm |
H mm |
h mm |
d mm |
d1 mm |
n |
|
УГТ-50,
УГТ-56 |
766 |
562 |
|
|
|
|
|
|
|
|
|
|
|
|
|
УГТ-62,
УГТ-68 |
944 |
742 |
90 |
166 |
340 |
220 |
282 |
282 |
340 |
420 |
190 |
7 |
11 |
5 |
|
УГТ-75,
УГТ-80 |
1124 |
922 |
|
|
|
|
|
|
|
|
|
|
|
|
|
УГТ-20М |
|
|
|
|
290 |
114 |
204 |
234 |
290 |
|
|
|
|
4 |
|
УГТ-30М |
486 |
|
|
|
364 |
190 |
278 |
308 |
364 |
336 |
|
|
|
6 |
|
УГТ-38М |
|
340 |
113 |
113 |
438 |
264 |
352 |
382 |
438 |
|
275 |
7 |
7 |
8 |
|
УГТ-46М |
490 |
|
|
|
512 |
338 |
426 |
456 |
512 |
341 |
|
|
|
10 |
|
УГТ-54М |
|
|
|
|
586 |
412 |
500 |
530 |
586 |
|
|
|
|
12 |
|
УГТ-18,
УГТ-25 |
|
345 |
|
|
|
|
|
|
|
|
|
|
|
|
|
УГТ-30 |
490 |
|
202 |
— |
280 |
180 |
— |
166 |
280 |
360 |
240 |
7 |
— |
3 |
|
УГТ-41 |
|
395 |
|
|
|
|
|
|
|
|
|
|
|
|

|
Тип устройства |
L mm |
L1 mm |
n |
|
УГТ-100 |
555 |
398 |
10 |
|
УГТ-100А,
УГТ-120 |
675 |
518 |
14 |
|
Информация c сайта www.tdpribor.ru |
|
|