Подробная информация

bline.gif (87 bytes)
Сделать заказ >>>

Март 2026
ПнВтСрЧтПтСбВс
            1
2 3 4 5 6 7 8
9 10 11 12 13 14 15
16 17 18 19 20 21 22
23 24 25 26 27 28 29
30 31          

Поставки КИПиА и электротехнического оборудования


ДКС, ДБС, ДФС, диафрагмы камерные, бескамерные, фланцевые

Диафрагмы

Диафрагмы

ДКС

Общие сведения

Диафрагма предназначена для измерения расхода жидкости, пара или газа в комплекте с дифманометрами-расходомерами.

Технические данные

Диафрагмы вида ДКС по типоразмерам изготавливаются в соответствии с ГОСТ 26969-86. Конструкция и размеры диафрагм камерных указаны на рис. 1 и в таблице 1.

Диафрагмы поставляются с кольцевыми камерами исполнения 1, по заказу потребителя могут быть изготовлены исполнения 2.

Кольцевые камеры изготавливаются из стали 20 ГОСТ 1050-74 (условное обозанчение "а"), либо из стали 12Х18Н10Т ГОСТ 5632-72 (условное обоначение "б").

Диафрагма изготавливается из стали 12Х18Н10Т, либо из стали 10Х17Н13М2Т ГОСТ 5632-72 (условное обоначение "в").

Диафрагмы камерные изготавливаются на условное давление Ру=0,6 МПа (6 кгс/см2) и Ру=10 МПа(100кгс/см2).

По заказу потребителя диафрагмы вида ДКС могут комплектоваться сосудами уравнительными конденсационными, конструкция и размеры которых представлены на рис. 4. Возможна комплектация сосудами уравнительными, сосудами разделительныами, конструкцию и размеры см. на рис. 5.

Сосуды могут быть поставлены типа СКУР-10, рабочее давление до 10 МПа.

Возможна поставка сосудов из стали 20 ГОСТ 1050-74, условное обозначение марки материала "А", либо из стали 12Х18Н10Т ГОСТ 5632-72, условное обозначение "Б".

Комплект поставки

В комплект поставки диафрагм вида ДКС входят:
диафрагма - 1 шт.
вентили - 2 шт.
ниппели - 4 шт.
гайки - 4 шт.
паспорт ИНСУ 5.892.022 ПС - 1 экз.
техническое описание ИНСУ 5.892.022 ТО - 1 экз.

По согласованию с потребителем допускается поставлять 1 экземпляр ТО на каждые 10 диафрагм, поставляемых в один адрес.

По требованию заказчика в комплект поставки

включены сосуды СКУР-10 - шт.

Размещение и монтаж

Диафрагма вида ДКС устанавливается в трубопровод между фланцами по ГОСТ 12815-80, удовлетворяющими требованиям приложения 5 ГОСТ 26969-86 и доработанными под посадочный диаметр кольцевых камер.

Уплотнение соединения следует вести с помощью двух уплотнительных прокладок, устанавливаемых между фланцем и кольцевой камерой диафрагмы, как со стороны входа, так и со стороны выхода потока.

Прокладки должны быть изготовлены из паро-нита по ГОСТ 481-80 толщиной 0,6 мм или других материалов, стойких к воздействию измеряемой среды.

Прокладки с диафрагмами не поставляются и изготовляются потребителем при монтаже диафрагмы ДКС в трубопровод.


ДФС

Общие сведения

Диафрагма вида ДОС является стандартным сужающим устройством, предназначенным для измерения расхода газа, пара или жидкости в комплекте с преобразователем разности давлений и отличается от диафрагм вида ДКС ГОСТ 26969-86 фланцевым способом отбора перепада давлений, применение которого предусмотрено РД 50-213-80.

Технические данные

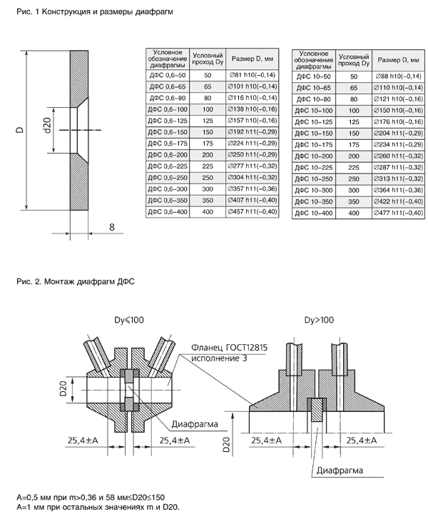
Конструкция и размеры диафрагм указаны в таблице рис. 1. Диафрагмы изготавливаются в соответствии с требованиями, предъявляемыми ГОСТ 26969-86 к дискам диафрагм вида ДКС, ДБС и требованиями РД 50-213-80.

Отверстие d20 выполняется по результатам расчета исходных данных потребителя в соответствии с РД 50-213-80.

Диафрагмы в соответствии с заказом изготавливаются из стали 12X18Н10Т ГОСТ 5632-72 (исполнение б) или стали 10Х17Н13М2Т ГОСТ 5632-72 (исполнение в).

Диафрагмы в соответствии с заказом изготавливаются на условное давление Ру=0,6 МПа или Ру=10МПа.

При заказе диафрагмы и в документации другой продукции в условном обозначении диафрагмы вида ДФС следует указывать вид диафрагмы, условное давление в соответствии с вышеуказанным, условный проход в соответствии с рис. 2 и исполнение по материалам (см. выше).

Пример условного обозначения диафрагмы вида ДФС на условное давление Ру=10 МПа для трубопровода с условным проходом Ду=250 мм из стали 12Х18Н10Т:
Диафрагма ДФС 10-250-6

Комплект поставки

В комплект поставки диафрагмы вида ДФС входят:
диафрагма ДФС - 1 шт.
паспорт - 1 экз.
техническое описание и инструкция
по эксплуатации - 1 экз.

По согласованию с потребителем допускается поставлять 1 экземпляр ТО на каждые 10 диафрагм, поставляемых в один адрес.

Размещение и монтаж

Диафрагм вида ДФС должны устанавливаться в трубопровод между фланцами по ГОСТ 12815-80 исполнения 3, удовлетворяющими требованиям приложения 5 ГОСТ 26969-86 и доработанными в соответствии с рис. 3 настоящего технического описания.

Уплотнение соединения диафрагмы с фланцами следует вести с помощью двух уплотнительных прокладок, устанавливаемых во впадины фланцев. Прокладки должны быть изготовлены из па-ронита по ГОСТ 481-80 толщиной 0,6 мм или других материалов, стойких к воздействию измеряемой среды.

Наружный диаметр прокладки должен быть равным наружному диаметру диафрагмы (см. рис. 1), а диаметр отверстия в прокладке - действительному внутреннему диаметру трубопровода.

Прокладки с диафрагмами не поставляются и изготавливаются потребителем в соответствии с указанными выше требованиями.

Диаметр отверстия во фланцах для отбора перепада давлений и внутренний диаметр импульсных трубок - 15 мм. Диаметры отверстий во фланцах должны быть одинаковыми, оси отверстий могут находиться в разных меридиональных плоскостях.

Указание по эксплуатации

При расчете общей погрешности расходомерного устройства следует учитывать дополнительную погрешность коэффициента расхода, вызванную увеличением толщины диафрагмы относительно значений, задаваемых РД 50-213-80. Величина дополнительной погрешности указана в таблице.

Информация c сайта www.tdpribor.ru

Тел.(4812)386407, 386663, 387597. Факс(4812)385745
E-mail: mail@tdgears.ru